- Woonoppervlakte
- Circa 75 m²
- Perceeloppervlakte
- Circa 104 m²
- Bouwjaar
- Gebouwd in 1932
- Aantal kamers
- 5 kamers (4 slaapkamers)
Sfeervolle HOEKWONING een tuin met achterom en dakterras, nabij het centrum
Wil je kijken, dit kan alleen op afspraak; Aanmelden ALLEEN via Funda of e-mail.
Aan de rand van het vernieuwde “Rode Dorp” staat deze leuke eengezinswoning. De ligging is ideaal: op loopafstand van zowel het bruisende stadscentrum als winkelcentrum “De Baronie”. In de directe omgeving vind je diverse scholen, uitvalswegen en speeltuinen. Op steenworp afstand ligt speeltuinvereniging “Kindervreugd” .
De woning beschikt over drie slaapkamers, een ruime zolderverdieping en een royaal dakterras. Dankzij de gunstige ligging kun je op elk moment van de dag een plekje in de zon vinden.
Indeling:
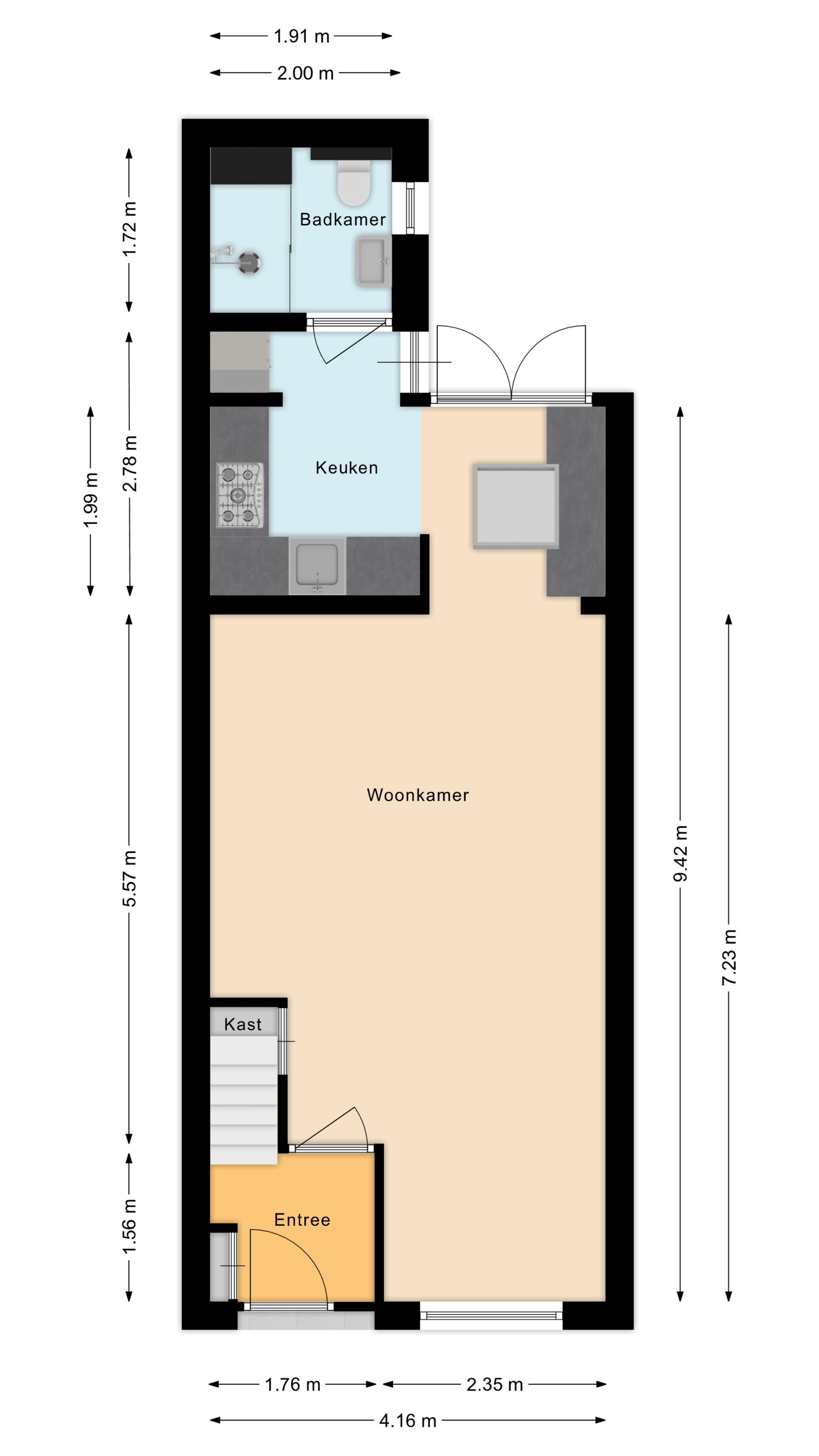
Begane grond:
Via de entree kom je in de hal met meterkast, trapopgang naar de eerste verdieping en toegang tot de woonkamer. De woonkamer is licht en sfeervol, met strak afgewerkte wanden en een moderne lichtgrijze tegel- klik-pvc vloer. Aan de achterzijde van de woning bevindt zich de deels open keuken, gescheiden van de woonkamer door een gezellige bar. De keuken is uitgevoerd in een L-opstelling, voorzien van fronten in grijs, een wit werkblad, verlaagd plafond met spotverlichting en een lichtkoepel voor extra daglicht. Dankzij de grote openslaande deuren betrek je de tuin gemakkelijk bij de woonkamer, wat zorgt voor een fijne verbinding tussen binnen en buiten.
De keuken is uitgerust met diverse inbouwapparatuur:
• Quooker (3-in-1)
• Koelkast
• 5-pits gaskookplaat
• RVS afzuigkap
• Vaatwasser (2024)
• Combi-magnetron
Vanuit de keuken bereik je zowel de badkamer als de onderhoudsvriendelijke, volledig betegelde achtertuin met tuinhuis. De badkamer is stijlvol betegeld en voorzien van een inloop douche, (zwevend)toilet, wastafel en sierradiator.
Eerste verdieping:
Op de eerste verdieping bevinden zich drie slaapkamers. De grootste slaapkamer geeft toegang tot een royaal dakterras – een heerlijke plek om van de zon te genieten. Heeft een wastafel en inbouwkast.
Tweede verdieping:
Via een vaste trap bereik je de ruime zolderverdieping met dakkapel. Deze open ruimte biedt volop mogelijkheden, bijvoorbeeld voor het realiseren van een extra slaapkamer of werkkamer. Hier bevinden zich tevens de aansluitingen voor wasmachine en droger, evenals de cv-installatie. (cv 2022)
Zolder voorzolder en een werkkamer aan de achterzijde, door de dakkapel. (leeftijd)
Bijzonderheden:
• extra slaapkamer op zolder
• Centrale en kindvriendelijke ligging
• Ruim dakterras
• woonkamer heeft een keldertje (voor opslag)
• Onderhoudsvriendelijke tuin
Ben je op zoek naar een geweldig leuke gezinswoning op een centrale locatie? Maak dan snel een afspraak voor een bezichtiging!
_____
Standaard passen we een ouderdoms- en asbest clausule toe. Deze informatie is met zorgvuldigheid samengesteld. Alle opgegeven maten en oppervlakten zijn indicatief. Mocht er onverhoopt onjuistheden staan vermeld dan wordt onzerzijds echter geen enkele aansprakelijkheid aanvaard voor onvolledigheid, onjuistheid of anderszins, dan wel de gevolgen daarvan.
Overdracht
- Vraagprijs
- € 350.000 k.k.
- Status
- Verkocht
- Aanvaarding
- In overleg
Bouw
- Object type
- Eengezinswoning, hoekwoning
- Soort bouw
- Bestaande bouw
- Bouwjaar
- 1932
- Soort dak
- Zadeldak bedekt met pannen
Oppervlakte en inhoud
- Woonoppervlakte
- 75 m²
- Perceeloppervlakte
- 104 m²
- Inhoud
- 308 m³
- Overige inpandige ruimte
- 10 m²
- Externe bergruimte
- 6.6 m²
- Gebouwgeb. buitenruimte
- 19 m²
Indeling
- Aantal kamers
- 5 kamers (4 slaapkamers)
- Aantal badkamers
- 1 badkamer
- Badkamervoorzieningen
- Toilet, douche, wastafelmeubel
- Aantal woonlagen
- 3 woonlagen
- Voorzieningen
- Mechanische ventilatie, glasvezelkabel
Energie
- Energielabel
- F
- Energielabel registratie
- 21-05-2025
- Isolatie
- Dakisolatie
- Verwarming
- Cv-ketel
- Warm water
- Cv-ketel, gas boiler
- Cv ketel
- Hr 107 combi, gas, combiketel, uit 2022, eigendom
Buitenruimte
- Ligging
- In centrum, in woonwijk, vlakbij snelweg, dichtbij openbaar vervoer, nabij school
- Tuin
- Afgesloten tuin
- ligging tuin
- Gelegen op het noorden en bereikbaar via achterom
Parkeergelegenheid
- Soort parkeergelegenheid
- Openbaar parkeren
Energieverbruik in Alphen aan den Rijn
Energielabel deze woning
Energielabel F
Publicatie energielabel: 21-05-2025
Stroomverbruik per jaar
(Gemiddelde hoekwoning in Alphen aan den Rijn)
Gasverbruik per jaar
(Gemiddelde hoekwoning in Alphen aan den Rijn)
* Cijfers zijn afkomstig van het CBS en bedoeld als indicatie en kunnen verschillen voor deze woning
Indicatie hypotheeklasten
Eigen inleg:
Spaargeld / overwaarde
Rente:
Laagste 10-jaars rente
Laagste 10-jaars rente
2,76% - Centraal Beheer Groen... - NHG
2,98% - Centraal Beheer Groen... - 80%
Laagste 20-jaars rente
3,19% - Centraal Beheer Groen... - NHG
3,31% - Centraal Beheer Groen... - 80%
Laagste 30-jaars rente
3,34% - Centraal Beheer Groen... - NHG
3,47% - Centraal Beheer Groen... - 80%
Hypotheek:
Bruto maandlasten: € 0 p/m
Netto maandlasten: € 0 p/m
Hoe berekenen we dit?
Het rentepercentage is gebaseerd op de laagste 10-jaars vaste rente voor één hypotheekdeel. De vermelde rente (2.76% met NHG) is gecontroleerd op 10-07-2025. Deze berekening is gebaseerd op een annuïteitenhypotheek die volledig wordt afgelost, waarbij de maandlasten gedurende de gehele looptijd gelijk blijven. De werkelijke rente en netto maandlasten kunnen variëren, afhankelijk van uw persoonlijke situatie en de hypotheekverstrekker. Raadpleeg een financieel adviseur voor een nauwkeurige berekening en advies. Aan deze berekening kunnen geen rechten worden ontleend; het dient enkel als indicatie.
Documentatie
Kadastrale kaart
Leefomgeving
Plattegronden PDF
WOZ waarderapport
BAG uittreksel
Brochure
Eigendomsinformatie-alphen-aan-den-rijn-a-5369
Kadastrale-kaart-alphen-aan-den-rijn-a-5369
20250528-tolstraat-2b-alphen-aan-den-rijn-wolvers-makelaardij-meetrapport
Energielabel-tolstraat-2b
Vn-lijst-van-zaken-2023-2
Vragenlijst-deel-b
Bezoek onze website
Bezichtiging
Bod uitbrengen
Waardebepaling
Zoekopdracht
Alles downloaden
Zonnegrenzen bekijken
Op de kaart
Inwoners in Alphen aan den Rijn
Cijfers voor postcodegebied 2405
- Totaal aantal inwoners
- 114182 inwoners
- Mannen
- 49%
- Vrouwen
- 51%
Inwoners in Alphen aan den Rijn
Cijfers voor postcodegebied 2405
- tot 15 jaar
- 17%
- 15 tot 25 jaar
- 11%
- 25 tot 35 jaar
- 25%
- 45 tot 65 jaar
- 29%
- 65 en ouder
- 18%
Huishoudens in Alphen aan den Rijn
Cijfers voor postcodegebied 2405
- Eenpersoons zonder kinderen
- 40%
- Meerpersoons zonder kinderen
- 29%
- Huishoudens zonder kinderen
- 69%
Huishoudens in Alphen aan den Rijn
Cijfers voor postcodegebied 2405
- Huishoudens met één kind
- 9%
- Huishoudens met meerdere kinderen
- 22%
- Huishoudens met kinderen
- 31%
Woningen in Alphen aan den Rijn
Cijfers voor postcodegebied 2405
- Woningen voor 1945
- 30%
- Woningen tussen 1945 en 1965
- 14%
- Woningen tussen 1965 en 1975
- 14%
- Woningen tussen 1975 en 1985
- 10%
- Woningen tussen 1985 en 1995
- 15%
Woningen in Alphen aan den Rijn
Cijfers voor postcodegebied 2405
- Woningen tussen 1995 en 2005
- 8%
- Woningen tussen 2005 en 2015
- 4%
- Woningen na 2015
- 5%
- Huurwoningen
- 40%
- Koopwoningen
- 60%
Overige in Alphen aan den Rijn
Cijfers voor postcodegebied 2405
- Gemiddelde WOZ waarde
- € 248.000,-
- Personen onder de 65 met uitkering
- Niet beschikbaar
Overige in Alphen aan den Rijn
Cijfers voor postcodegebied 2405
- Adressen per km²
- 2845
- Stedelijkheid (schaal 1 op 5)
- 100%
Korte feiten over Alphen aan den Rijn
Alphen aan den Rijn is de hoofdplaats van de gelijknamige gemeente Alphen aan den Rijn. De plaats is gelegen in de Nederlandse provincie Zuid-Holland, aan de rivieren Oude Rijn en Gouwe in het veenweidegebied Groene Hart tussen de grote steden Amsterdam, Utrecht, Rotterdam, Den Haag en Leiden. Een inwoner van Alphen aan den Rijn wordt Alphenaar genoemd.
Makelaardij Wolvers
Indien u vragen heeft of u wilt een bezichtiging inplannen, dan kunt u gebruik maken van het formulier hiernaast. Er zal daarna op korte termijn contact met u worden opgenomen.
Speenkruid 24
2408 LL, Alphen aan den Rijn
06 147 792 92 info@makelaardijwolvers.nl www.makelaardijwolvers.nlContact opnemen
Welkom bij Makelaardij Wolvers
Of je nou een flat, twee-onder-een-kapwoning, tussenwoning, hoekwoning, villa, patiobungalow of een appartement, koopt of verkoopt? Ik sta voor jou klaar! Dit alles doe ik voor aankoop in de regio: Alphen aan den Rijn, Nieuwerbrug, Nieuwkoop, Waddinxveen, Zoetermeer, Gouda, Zoeterwoude, Roelofarendsveen, Nieuwveen, Woubrugge, Zwammerdam, Ter Aar, Nieuwkoop, Zevenhoven, Bodegraven, Boskoop, Reeuwijk etc. Voor de verkoop van huizen: richt ik mijn pijlen eerst op Alphen aan den Rijn (in een straal van 5 kilometer rondom Alphen aan den Rijn).
Nieuwste reviews
-
Plutostraat 18
Monique is een oprecht persoon met veel empathie. Geeft altijd eerlijk, transparant en professionel reactie op mij als verkoper en ook naar...
-
Spanjesingel 86
Vanaf het begin was Monique Wolvers enorm betrokken bij onze zoektocht naar een huis. En altijd met een optimistische instelling. Je merkt d...
-
P. van Schravendijkstraat 39
Super makelaar, met aandacht voor de verkoper. Niet alles via de mail en telefoon, nog ouderwets contact